Poslovni prostor za izdavanje, Centar, 640€, 64m²




















640 €
- 1. sprat
- Uobičajeno stanje
- Oglas oglašava agencija pod reg. brojem 1436
- Godina izgradnje: 2000.
Opis oglasa
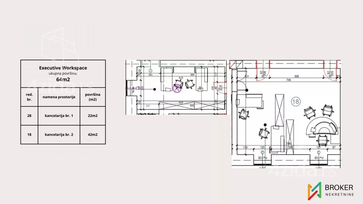
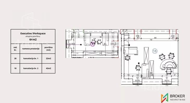
Broker - Executive Workspace - Poslovni prostor
Prostor od 64m², precizno oblikovan kao executive workspace — za direktore, advokate ili menadžere kojima je potrebna kombinacija mira, prestiža i potpune funkcionalnosti.
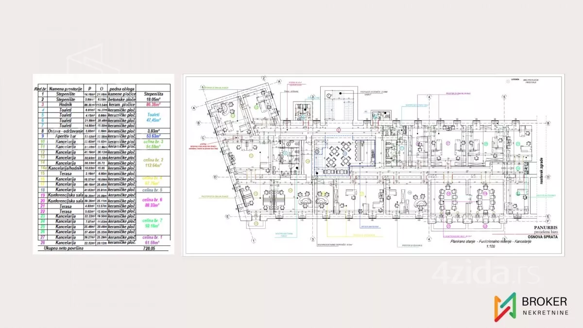
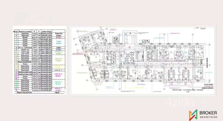
Poslovni prostor se sastoji od:
- Kancelarije br. 1 - 22m2
- Kancelarije br. 2 - 42m2
Takođe poseduje:
- Salonski ulaz – Iz gradskog parka nezavisan od ostalih poslovnih prostora
- Zajednički aperitiv bar (moguću kuhinju) od 54m2
- Mogućnost korišćenja 4 toaleta koji se nalaze u Poslovnoj zgradi
- Grejanje – Toplotna pumpa (Najekonomičniji vid zagrevanja poslovnih prostora)
- Hlađenje - Toplotna pumpa (Centralni sistem hlađenja)
- Internet – Kompletnu optičku infrastrukturu po kancelarijama
- Pod - Kompletno rekonstuisan i obložen pločicama
- Zidovi i plafoni – Potpuno rekonstruisani
- Instalacije – Rekonstruisana strujna(150kw - kapacitet poslovne zgrade) vodovodna i kanalizaciona
- Parking mesta – U dvorištu sa mogućnošću mesečnog zakupa
- Orijentacija – Dvostrano orijentisan
Uslovi zakupodavca:
- Minimalni zakup: 2 Godine
- Depozit: 3 Kirije
- Garantovana kirija za vreme trajanja ugovora
- Ugovor
Cena parking mesta iznosi: 120 evra
Sve adaptacije prostora koji datira iz 1890. godine (renoviranje) su vršene 2024. godine dok je rekonstrukcija konstrukcije zgrade urađena 2019. godine
Agencijska provizija za posredovanje: 50 % od cene zakupa (Jednokratno)
__________________________________________________________________________________________________________________
Broker Nekretnine
Broker Aleksandar
Kancelarija: Karađorđeva 2a
*Sačuvaj oglas uz belešku i primaj obaveštenja o njihovom pojeftinjenju ili pojavljivanju sličnih
Prikaz poslovnog prostora na mapi
Parkovi u blizini
- Park na Trgu kralja Petramanje od 1 min
- Narodna bašta Pančevo22 min
- Park Barutana26 min

Obeležja kulture u blizini
- Spomenik vojvodi Stevanu Šupljikcu7 min
- Zgrada Stare bolnice8 min
- Kompleks Svilara9 min

Škole/Fakulteti/Vrtići u blizini
- Osnovna škola (Osnovna škola Jovan Jovanović Zmaj)6 min
- Srednja škola (Gimnazija Uroš Predić)4 min
- Vrtić (Predškolska ustanova Dečja radost Pančevo)9 min
- Fakultet (Stomatološki fakultet Pančevo)11 min

- Bolnica (Bolnica za očne bolesti Pančevo)6 min
- Klinika (Poliklinika MD)7 min
- Teretana (Fitnes klub Forma)11 min
- Prodavnica (Maxi Supermarket)2 min
- Restoran (Bistro Kokoschka)2 min
- Kafana (Stara Vajfertova pivara)6 min
- Taksi stajalište (Taxi stanica)5 min
- Autobuska stanica (Gradska uprava)2 min
- Banka (OTP banka)1 min
- Pošta (Pošta Pančevo 6)3 min
Kontakt oglašivača
Krediti OTP banke
Period otplate
13 mesecimesečno
Period otplate 13 - 71 mesec
Saznaj više
