Troiposoban stan na prodaju, Adice, 152.360€, 81m²












152.360 €
1.881 € / m2
- Stan u zgradi
- U izgradnji
- Prostorije: terasa
- Oglas oglašava agencija pod reg. brojem 1020
- Godina izgradnje: 2026.
Opis oglasa
Agencijska šifra: 1007132.
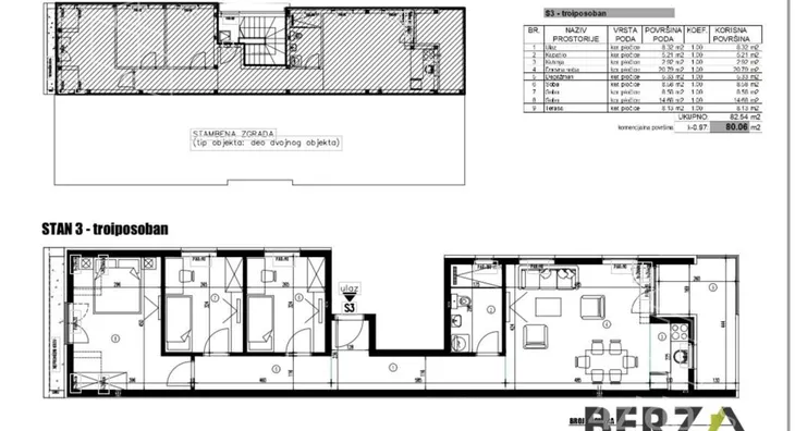
Prodaje se fantastičan troiposoban stan (80.06m2) na drugom spratu stambene zgrade u izgradnji. Raspored stana je takav da je spavaći deo odvojen od dnevnog dela sa kuhinjom i trpezarijom. Podno grejanje, terase sa delom od kaljenog stakla, svaki stan ima svoj elektro kotao. Keramika i PVC stolarija premium kvaliteta. Keramičke pločice su predviđene za ceo stan, ali imate mogućnost odabira u izgradnji za spavaće sobe (keramika ili tarket). Mogućnost povrata PDV-a prilikom kupovine prve nekretnine. Rok završetka radova je jun 2026. godine.
Lokacija objekta omogućava da se za 5 do 10 minuta laganog hoda stigne do obale reke Dunav, gde možete uživati u miru i lepoti prirode, sa pogledom na Frušku Goru. Objekat se takođe nalazi u mirnom delu, daleko od saobraćajne gužve i buke, a opet blizu glavnih ulica koje vode u sve delove grada.
*Sačuvaj oglas uz belešku i primaj obaveštenja o njihovom pojeftinjenju ili pojavljivanju sličnih
Prikaz stana na mapi
Parkovi u blizini
- Park Bistrica47 min

Obeležja kulture u blizini
- Jodna Banja14 min
- Dvorac Hadik-Kotek14 min
- Dvorac Eđšeg15 min

Škole/Fakulteti/Vrtići u blizini
- Osnovna škola (Osnovna škola Marija Trandafil)manje od 1 min
- Srednja škola (Privatna medicinska škola Dositej Obradović)6 min
- Vrtić (Dečiji vrtić Zlatokosa)5 min
- Fakultet (Protestantski teološki fakultet)11 min

- Bolnica (Ginekološka bolnica Ferona)10 min
- Klinika (Family Medica poliklinika)11 min
- Teretana (Fintess centar Basic Control Academy)8 min
- Prodavnica (Mikromarket)1 min
- Restoran (Restoran Exit West)28 min
- Kafana (Kafanica Kod Dače)45 min
- Taksi stajalište (Taxi prevoz Novi Sad)34 min
- Autobuska stanica (Veternička - Fešter osnovna škola)1 min
- Banka (Erste Bank Ekspres ekspozitura)10 min
- Pošta (Pošta Veternik 21203)5 min
Kontakt oglašivača
Krediti OTP banke
Saznaj više
Prikazana rata odnosi se na maksimalni period otplate. Kalkulator je informativnog karaktera.
* Nakon isteka 5 godina, prelazi se na varijabilnu kamatnu stopu


