Četvorosoban stan na prodaju, Stara Pazova, 194.050€, 126m²




194.050 €
1.540 € / m2
- Podno grejanje
- Novo
- Prostorije: kupatilo, toalet, terasa
- Oglas oglašava agencija pod reg. brojem 1712
- 1 lift
- Godina izgradnje: 2024.
Opis oglasa
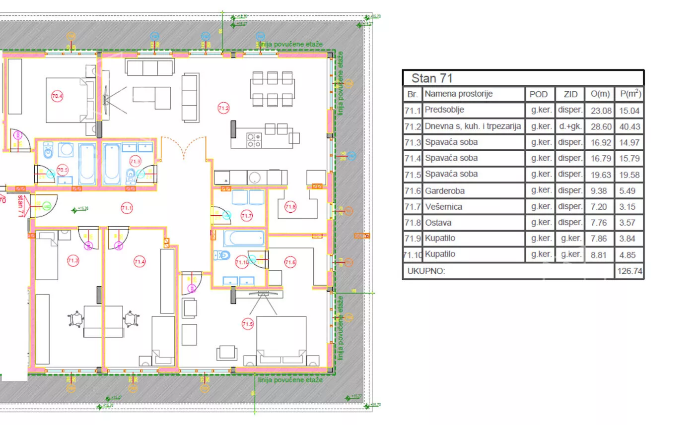
U ponudi su stanovi u novogradnji u centru Stare Pazove. Stan raspolaze sa kombinovanom dnevnom, kuhinjom i trpezarijom, tri odvojene spavaće sobe, garderoberom, kupatilom i toaletom, i prostranom terasom od 40m2.
Zgrada je moderno građena sa kvalitetnim materijalima, sedmokomornim PVC prozorima, troslojnog stakla i roletnama. Na podovima je keramika pa podno grejanje se savršeno uklapa u sve. Svaki stan ima svoj merni sat. Stolarija je medijapan i prirodnih boja koja će se lako uklopiti u svaki dom.
Postoji mogućnost kupovine na kredit, kao i povrata PDV-a. Izražena cena je bez PDV.
*Sačuvaj oglas uz belešku i primaj obaveštenja o njihovom pojeftinjenju ili pojavljivanju sličnih
Prikaz stana na mapi
Parkovi u blizini
- Park Stara Pazova6 min

Obeležja kulture u blizini
- Ambar sa kotobanjom porodice Lepšanović12 min
- Ambar sa kotobanjom porodice Galečić12 min
- Dvorac Šlos13 min

Škole/Fakulteti/Vrtići u blizini
- Osnovna škola (Osnovna škola Heroj Janko Čmelik)5 min
- Srednja škola (Gimnazija Branko Radičević)1 min
- Vrtić (Dečiji vrtić Poletarac)4 min
- Fakultet (SMATSA školski centar)29 min

- Bolnica (Klinika za lečenje bolesti zavisnosti MedTim)18 min
- Klinika (Poliklinika Nova Pazova)15 min
- Teretana (Fitness centar Beogym)19 min
- Prodavnica (Supermarket Univerexport)3 min
- Restoran (Restoran Central Bar)4 min
- Autobuska stanica (Autobusko stajalište Lasta)11 min
- Banka (Eurobank Direktna)2 min
- Pošta (Pošta Stara Pazova)1 min
Kontakt oglašivača
Krediti OTP banke
Saznaj više
Prikazana rata odnosi se na maksimalni period otplate. Kalkulator je informativnog karaktera.
* Nakon isteka 5 godina, prelazi se na varijabilnu kamatnu stopu






















