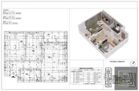
Trosoban stan na prodaju, Telep, 172.900€, 59m²


172.900 €
2.931 € / m2
- Stan u zgradi
- Grejanje na gas
- Prostorije: terasa
- Oglas oglašava agencija pod reg. brojem 1594
- 1 lift
Opis oglasa
Predstavljamo Vam odličan stambeni kompleks na atraktivnoj lokaciji u Novom Sadu, u naselju Telep. Objekat se izdvaja kombinacijom kvalitetne pozicije, modernog dizajna i pažljivo izvedenih građevinskih radova, što ga čini odličnim izborom za stanovanje.
Kompleks je pozicioniran na južnom delu Telepa, u blizini Limana, Ribarskog ostrva i biciklističke staze koja povezuje Novi Sad, Veternik, Futog i Begeč. Ovakva lokacija pruža dobru povezanost sa važnim gradskim sadržajima, kao i prijatan ambijent za svakodnevni život.
Grejanje je na gas, sa kalorimetrima, što omogućava veliku uštedu u mesečnim režijama i dodatno doprinosi ekonomičnosti stanovanja.
Rok završetka radova je decembar 2026. godine.
Za sve koji traže stan na dobroj lokaciji, u mirnijem delu grada, a opet blizu važnih saobraćajnih i rekreativnih zona, ovaj kompleks predstavlja veoma zanimljivu priliku.
U cenu je uračunata agencijska provizija.
Za više informacija, pozovite!
REG. BR. Posrednika : 1594
Sky 021 Nekretnine
060... (prikaži broj telefona)
061... (prikaži broj telefona)
ID:1272
*Sačuvaj oglas uz belešku i primaj obaveštenja o njihovom pojeftinjenju ili pojavljivanju sličnih
Prikaz stana na mapi
Kontakt oglašivača

Krediti OTP banke
Saznaj više
Prikazana rata odnosi se na maksimalni period otplate. Kalkulator je informativnog karaktera.
* Nakon isteka 5 godina, prelazi se na varijabilnu kamatnu stopu

